REZERVEREN!!! Moderne gebouw met lift in aanbouw, dichtbij het centrum. S21
- Code : 28430
- Locatie : Pula
- Woonoppervlakte : 56.42 m2
- Perceeloppervlakte : 0 m2
- Verdieping : 2
- Aantal verdiepingen : 7
- Aantal kamers : 2
- Aantal badkamers : 1
215.274 €
1.603.791 Kn
KENMERKEN
- Afstand van het centrum : 1000 m
- Afstand tot de zee : 2500 m
- Parkeren : Ja
- Airco : Ja
- Lift : Ja
- Energie-efficiëntie : A+
- Bouwjaar : 2024
OMSCHRIJVING
Pula!
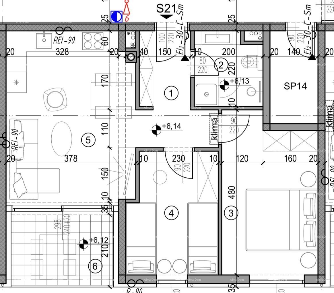
Te koop is een appartement op de 1e verdieping van een appartementencomplex met lift. Appartement S21 zal bestaan uit een entreehal + garderobe, 2 slaapkamers, een badkamer, een keuken met eetkamer en een woonkamer met loggia.
UITRUSTING:
-elektrische vloerverwarming in de badkamer
-elektrische boiler Ariston Velis
-inbraakwerende voordeur
-inverter airconditioning
-tegels
-laminaat
-witte binnendeuren
De appartementen worden verkocht als afgewerkt, volgens het "sleutel-op-de-deur" systeem.
Uitstekende locatie. Dichtbij een winkelcentrum en het centrum van Pula - 1 km.
Het gebouw zal twee ingangen, twee liften en 6 verdiepingen hebben.
Er zijn meer vrije appartementen beschikbaar.
Bij het appartement hoort ook een berging van 3,78 m2 tegen een meerprijs, evenals een parkeerplaats.
De prijs van het appartement met parkeerplaats en berging bedraagt: 216.324 euro.
*In de prijs is BTW inbegrepen.
De geplande voltooiing van de bouwwerkzaamheden is begin 2026.
OPMERKING: Wij zijn niet verantwoordelijk voor eventuele fouten in de beschrijvingen van onroerend goed, maar we trachten zo juist en nauwkeurig mogelijk te zijn.
